Major Balfe Street-Cally Road development for Institute of Physics at planning cttee 5 Feb

cally facadeOne for the diary – the big development proposed by the Institute of Physics for Balfe Street and the Cally Road goes to planning committee on Thursday 5 February at 1900 in the Town Hall on Upper St.  Anyone can attend.  To bag a speaking slot speak you have to email enquiries@islington.gov.uk

IoP have made some changes to their plans – notably removing the awful saw tooth factory North light roof design for the Cally side.  But the building remains very big for it’s plot, busts through roof height and other guidelines in the conservation area and looms over the bottom of the Cally Road stealing loads of light from people in excess of guidelines.  If the council grant this then in my view, they won’t be able to stop all other roof lines rising in the conservation area and we’ll see a forest of this sort of thing.

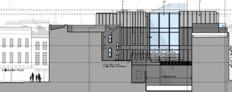
Here’s the latest proposal for the Cally elevation

 

cally elevation revised

and here is the previous design

cally elevation original

The roof is no longer saw toothed but is still vastly higher than the conservation area rooflines.

From the communal garden for the properties behind the site the view is still pretty awful and will comprise loads of people behind glass staring at the garden and people in it, as this section shows.

communal garden

 

And the Victorian warehouse/factory on Balfe street is still badly brutalised  with banal steel and glass.  The Institute of Physics anticipates 216,000 new visitors per year about 850 per working day – so I guess that there won’t be anywhere to park your bike in the vicinity any more.

It isn’t too late to comment even outside the deadline – in practice Islington accepts comments right up until the meeting you can do so by emailing planning@islington.gov.uk and quoting the application number  P2014/3577/FUL.

You can find these and more drawings on the council’s site if you search  P2014/3577/FUL or ‘Balfe Street’ in their planning applications search thing.  Drawings here are copyright the architect etc I am using them here on a fair use basis.

 

 

Unknown's avatar

About William Perrin

Active in Kings Cross London and South Oxfordshire, founder of Talk About Local, helping people find a voice online and a trustee of The Indigo Trust , Good Things Foundation and ThreeSixtyGiving as well as Connect8.
This entry was posted in Big developments, Planning, Licensing and Regulation and tagged , , , . Bookmark the permalink.

2 Responses to Major Balfe Street-Cally Road development for Institute of Physics at planning cttee 5 Feb

  1. Robert Milne's avatar Robert Milne says:

    The case officer’s report is at http://democracy.islington.gov.uk/documents/g2569/Public%20reports%20pack%2005th-Feb-2015%2019.30%20Planning%20Sub%20Committee%20B.pdf?T=10. It recommends granting permission without any very onerous conditions, despite many negative comments.

  2. Pingback: Residents take apart Institute of Physics case on eve of planning meeting @physicsnews | Kings Cross Environment

Leave a comment